Close
Archi-tektonika biuro projektowe
Menu
Home
Portfolio
Oferta
O nas
Referencje
Aktualności
Kontakt
Projekty domów
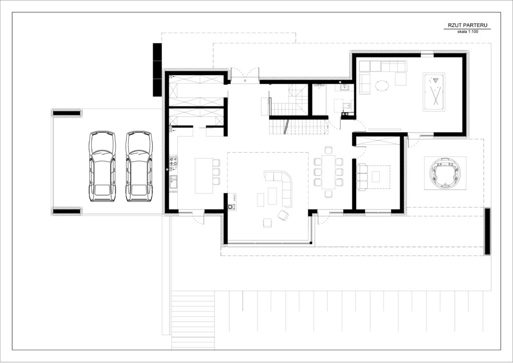
Villa Caballos
Villa Caballos